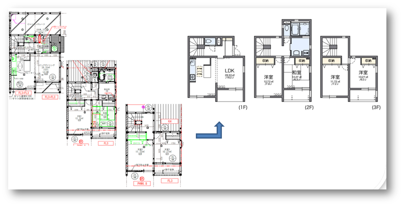
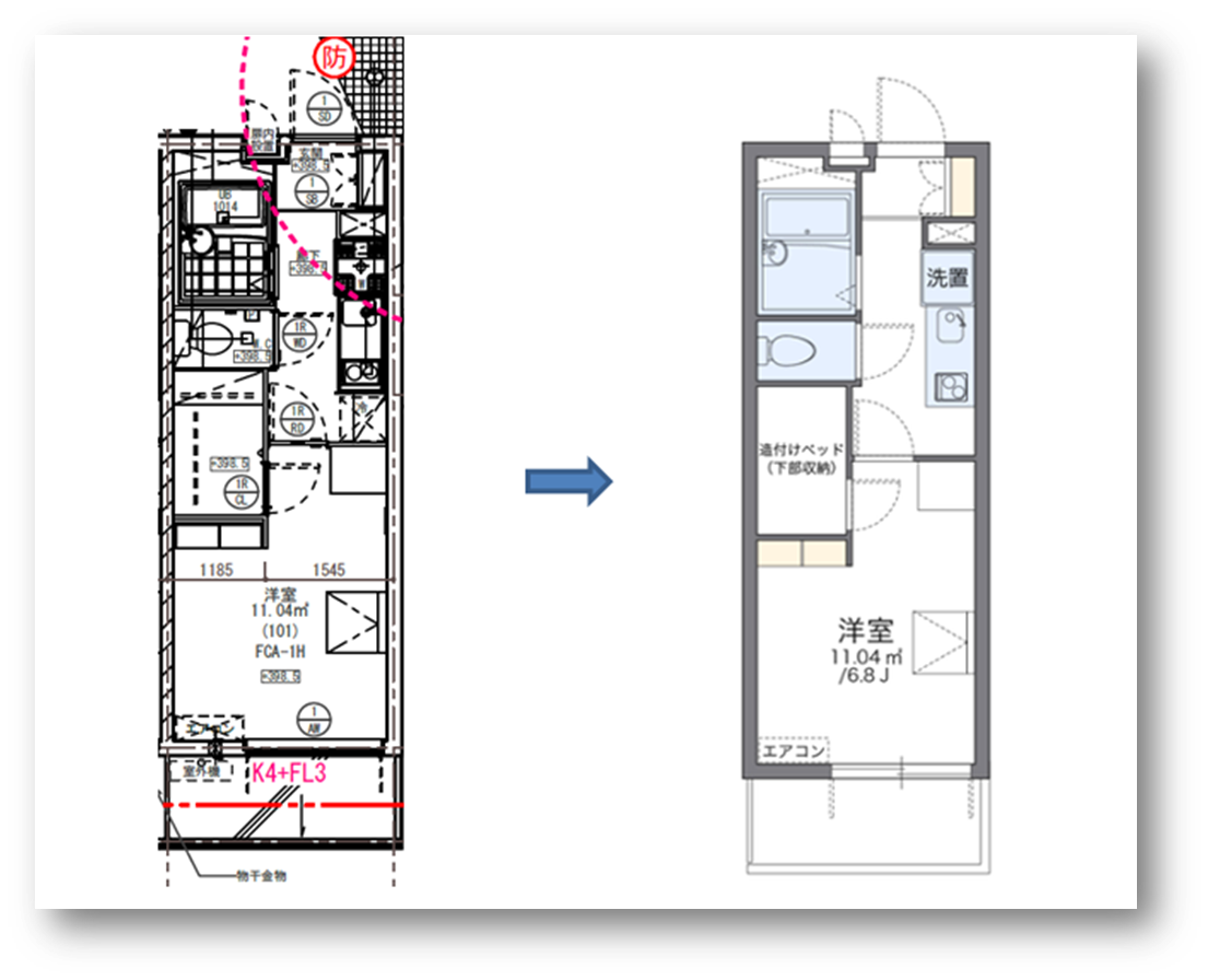
間取り図

66.png

 サービス内容                                                                                                                                    


       

間取り図一覧




作業環境:Illustrator(2019〜2024)

入  稿:PDF/TIFF/JPG
納  品:AI/JPG

デリバリー能力:200P~/月